Charmante maison rénovée 3 ch. avec jardin!
Maison pour € 220.000
Rue du Châlet 19, 7100 La Louvière
Réf.: 5643194
3 chambre(s)
1 salle(s) de bains
170m2 surface habitable
255m2 surface du terrain
PEB: 501 kWh/m2
Description
OPTION!!! Visites suspendues pour le moment!!!
Vous aussi, inscrivez-vous dans notre base de données et soyez averti des nouveaux biens en priorité comme l'ont fait les futurs propriétaires de cette maison!
We Invest Centre Hainaut vous propose cette charmante maison rénovée située à proximité de toutes les facilités (telles qu'autoroutes, commerces, écoles, transports en commun).
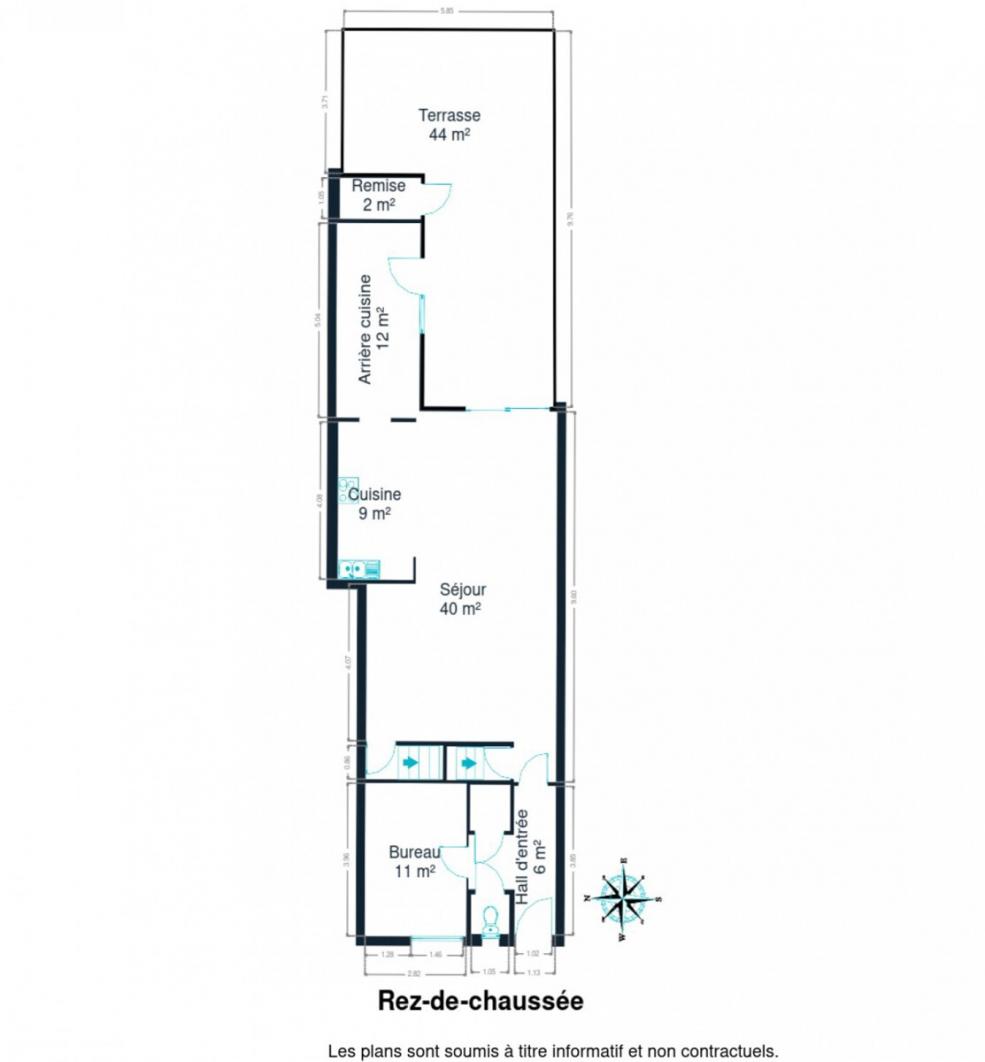
Elle se compose au rez-de-chaussée: hall d'entrée avec vestiaire, wc séparé, bureau/salle de jeux, living, cuisine équipée, arrière-cuisine;
A l'étage 1: hall de nuit, salle de douche équipée récente, 2 chambres;
A l'étage 2: palier, grenier, chambre 3 (divisible en 2).
Elle vous offre également: caves avec coin buanderie, terrasse avec barbecue, remise et jardin bien exposé.
Eléments techniques: toiture en ordre et isolée, châssis PVC en double vitrage avec volets, chauffage via cassette au gaz et poêle au bois, adoucisseur d'eau.
PEB=F (501Kwh/m².an). Code unique 20150115004026 E total=94091Kwh/an.
RC=661€ (réduction droits d’enregistrement poss.).
Idéale pour jeune couple, famille ou indépendant grâce au bureau du rdc! A découvrir rapidement!
Faire offre àpd: 220.000€
Infos et visites: 064/555.777.
Pour toute demande d'évaluation GRATUITE et SANS ENGAGEMENT, contactez-moi au 0499/35.88.44.
!!! We Invest Centre Hainaut - Votre agence de proximité sur La Louvière, Binche, Thuin, Anderlues, Chapelle, Morlanwelz, Manage, Seneffe, Courcelles et Pont-à-Celles !!!
Vous aussi, inscrivez-vous dans notre base de données et soyez averti des nouveaux biens en priorité comme l'ont fait les futurs propriétaires de cette maison!
We Invest Centre Hainaut vous propose cette charmante maison rénovée située à proximité de toutes les facilités (telles qu'autoroutes, commerces, écoles, transports en commun).
Elle se compose au rez-de-chaussée: hall d'entrée avec vestiaire, wc séparé, bureau/salle de jeux, living, cuisine équipée, arrière-cuisine;
A l'étage 1: hall de nuit, salle de douche équipée récente, 2 chambres;
A l'étage 2: palier, grenier, chambre 3 (divisible en 2).
Elle vous offre également: caves avec coin buanderie, terrasse avec barbecue, remise et jardin bien exposé.
Eléments techniques: toiture en ordre et isolée, châssis PVC en double vitrage avec volets, chauffage via cassette au gaz et poêle au bois, adoucisseur d'eau.
PEB=F (501Kwh/m².an). Code unique 20150115004026 E total=94091Kwh/an.
RC=661€ (réduction droits d’enregistrement poss.).
Idéale pour jeune couple, famille ou indépendant grâce au bureau du rdc! A découvrir rapidement!
Faire offre àpd: 220.000€
Infos et visites: 064/555.777.
Pour toute demande d'évaluation GRATUITE et SANS ENGAGEMENT, contactez-moi au 0499/35.88.44.
!!! We Invest Centre Hainaut - Votre agence de proximité sur La Louvière, Binche, Thuin, Anderlues, Chapelle, Morlanwelz, Manage, Seneffe, Courcelles et Pont-à-Celles !!!
Aménagement
| Bureau | 11.16 m² | |
| Cave | 45.21 m² | |
| Chambre à coucher 1 | 10.93 m² | |
| Chambre à coucher 2 | 33.56 m² | |
| Cuisine 1 | 8.6 m² | |
| Grenier 1 | 7.27 m² | |
| Living | 40.39 m² | |
| Salle de bains 1 | 6.85 m² | |
| Terrasse | 43 m² |
L'Aménagement du territoire
| G-score | Inconnu |
| P-score | Inconnu |
Données PEB
| Label énergétique |
F
|
| Valeur PEB | 501 kWh/m² |
501
Confort
| Chauffage | Gaz naturel |
| Description chauffage | gaz |
| Chaudière | Commune |
| Menuiseries extérieures | PVC |
| Vitrage | Double vitrage |
| Distribution | Oui |
| Raccordement éléctricité | Oui |
| Raccordement aux égouts | Oui |
| Raccordement gaz | Oui |
| Raccordement téléphone | Oui |
| Raccordement eau | Oui |
Infos financières
| Prix | € 220.000,00 |
| Revenu cadastral | € 661,00 |
Autres Infos
| Disponible | A l'acte, après le paiement |
| Jardin présent | Oui |
| Distance transports en commun | 200 m |
Relatif à la construction
| Type de construction | 2-façades |
| Chambres à coucher | 3 |
| Salles de bains | 1 |
| Toilettes | 2 |
| Etat | Bon état |
| Superficie du terrain | 255 m² |
| Surface de construction | 100 m² |
| Surface habitable | 170 m² |
| Largeur du lot | 6 m |
| Profondeur du lot | 6 m |
| Largeur de façade | 5 m |
| Attestation contrôle électrique | Non communiqué |
| Obligation de rénovation | Non communiqué |
Descriptif informatif et non contractuel.